| 品牌aplisens | 有效期至長期有效 | 最后更新2024-02-06 17:40 |
| 瀏覽次數41 |
法蘭式噴嘴流量計 ZPK
技術數據
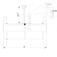
-公稱壓力 PN6+PN100 流量計尺寸 DN25-DN800-流量元件(孔板、噴嘴)材質:不銹鋼 1.4301-結構元件材質:碳鋼不銹鋼-最高工作溫度 500°C
-金屬認證-根據 PN-EN ISO 5167.1SO/TR 15377 進行計算
應用
噴嘴流量計用于測量近距離管道中液體介質的流量。安裝在管道中的孔板會產生壓降。壓差通過差壓變送器的脈沖管路測量。流速與壓降之間的關系非常明顯,可以輕松地將測量到的壓差轉換為流量值。
不帶校正功能的流量計適用于壓力和溫度值恒定的介質。對于監(jiān)護轉移測量,建議使用不帶 SQRT 特性和介質壓力和溫度變化校正功能的差壓變送器。這種測量必須在專用的流量計數器中進行計算:
-在寬流量范圍內測量精度高 耐腐蝕介質 在寬溫度和壓力范圍內工作
訂購程序:
K P265GH M22x1.5
安裝元件類型: 14 M22x1,5 , ,其他
管道和法蘭或其他材料:P265GH304
流量元件孔口類型 噴嘴孔口 :- ,- ,- quare K D Kkw
DN100
尺寸DN
公稱壓力
PN16
ZPK
流量計型號
1.4301
流量元件材料或其他
孔板 ZPK
差壓法
測量精度高
經濟型流量測量解決方案
可靠性高

| 王鈳深 QQ:2455880176 手機:18510519230 電話:010-64714988-191 傳真:010-84786709-667 郵件:[email protected] |
![]() | ![]() |
工作日
9:00-18:00